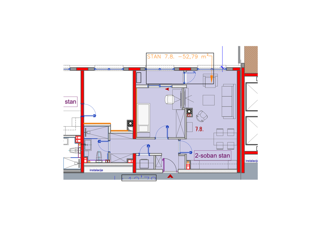
Skyline Plaza - 7.8 stan | 54 m² | CIJENA NA UPIT
Trosoban stan površine 53,62 m² sa lođom.
U ponudi je moderan stan u prestižnom stambenom kompleksu Skyline Plaza – jednom od najatraktivnijih projekata u Tuzli. Stan je projektovan tako da pruži maksimalnu funkcionalnost i komfor, uz savremene standarde gradnje i moderan arhitektonski dizajn.
Kompleks Skyline Plaza karakterišu:
• vrhunski kvalitet gradnje i završnih materijala
• energetski efikasna rješenja
• podzemne garaže i parking prostor
• 24/7 sigurnosni sistem i videonadzor
• blizina centra grada i svih ključnih sadržaja
Stan se nalazi na sedmom spratu, sa odličnom orijentacijom i obiljem prirodne svjetlosti.
Prednosti stana:
• moderan raspored prostorija
• visoki stropovi i veliki prozori
• mogućnost personalizacije enterijera
• ekskluzivan pogled na grad
Napomena: Na fotografijama su prikazane vizualizacije koje ilustrativno dočaravaju izgled prostora nakon uređenja.
U ponudi je moderan stan u prestižnom stambenom kompleksu Skyline Plaza – jednom od najatraktivnijih projekata u Tuzli. Stan je projektovan tako da pruži maksimalnu funkcionalnost i komfor, uz savremene standarde gradnje i moderan arhitektonski dizajn.
Kompleks Skyline Plaza karakterišu:
• vrhunski kvalitet gradnje i završnih materijala
• energetski efikasna rješenja
• podzemne garaže i parking prostor
• 24/7 sigurnosni sistem i videonadzor
• blizina centra grada i svih ključnih sadržaja
Stan se nalazi na sedmom spratu, sa odličnom orijentacijom i obiljem prirodne svjetlosti.
Prednosti stana:
• moderan raspored prostorija
• visoki stropovi i veliki prozori
• mogućnost personalizacije enterijera
• ekskluzivan pogled na grad
Napomena: Na fotografijama su prikazane vizualizacije koje ilustrativno dočaravaju izgled prostora nakon uređenja.
| Location: Tuzla |
An address must be specified for a map to be embedded

















