SPO Pozorišna - flat 68,30 m2
Prodaje se prostran i svijetao stan površine 68,30 m² na jednoj od najtraženijih lokacija u Tuzli – Pozorišna ulica. Stan se nalazi u neposrednoj blizini Narodnog pozorišta, glavnog šetališta, kafića, restorana i svih bitnih sadržaja za ugodan gradski život.
Početak radova je septembar 2025. godine, a završetak kraj 2026. godine.
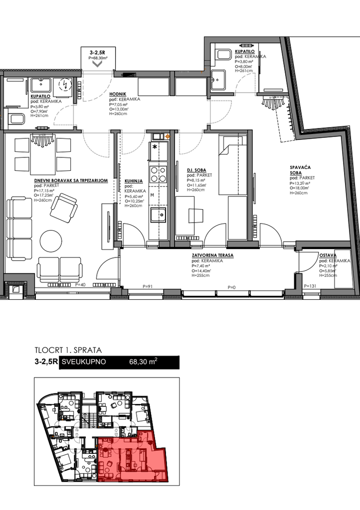
Struktura stana:
• Dnevni boravak sa trpezarijom
• Kuhinja sa trpezarijom
• Spavaća soba
• Dječija soba
• Dva kupatila
• Zatvorena terasa
• Hodnik
• Ostava
Prednosti nekretnine:
• Odlična pozicija u samom centru grada
• Kvalitetna gradnja
• Funkcionalan raspored prostorija
• Blizina škole, vrtića, banaka, trgovina
• Idealno za porodični život ili investiciju
Površina: 68,30 m²
Lokacija: Pozorišna ulica, Tuzla
Cijena: 382.480 KM
Početak radova je septembar 2025. godine, a završetak kraj 2026. godine.
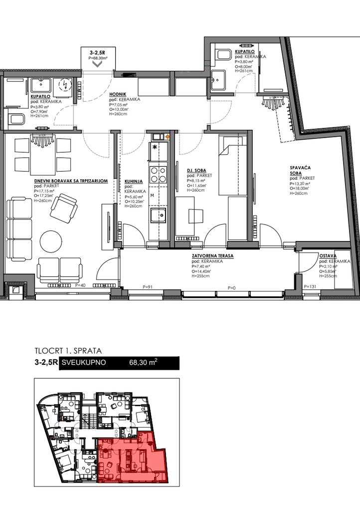
Struktura stana:
• Dnevni boravak sa trpezarijom
• Kuhinja sa trpezarijom
• Spavaća soba
• Dječija soba
• Dva kupatila
• Zatvorena terasa
• Hodnik
• Ostava
Prednosti nekretnine:
• Odlična pozicija u samom centru grada
• Kvalitetna gradnja
• Funkcionalan raspored prostorija
• Blizina škole, vrtića, banaka, trgovina
• Idealno za porodični život ili investiciju
Površina: 68,30 m²
Lokacija: Pozorišna ulica, Tuzla
Cijena: 382.480 KMThis product is no longer available.
| Location: Tuzla |
An address must be specified for a map to be embedded











